Save
Ask
Tour
Hide
Share
$10,235
73 Days On Site
7730 W Mcnab RoadNorth Lauderdale, FL 33068
For Rent|Retail|Active
0
Beds
0
Total Baths
6,014
SqFt
$2
/SqFt
County:
Broward
Call Now: 954-998-3673
Is this the listing for you? We can help make it yours.
954-998-3673



Save
Ask
Tour
Hide
Share
Mortgage Calculator
Monthly Payment (Est.)
$47Calculator powered by Showcase IDX, a Constellation1 Company. Copyright ©2026 Information is deemed reliable but not guaranteed.
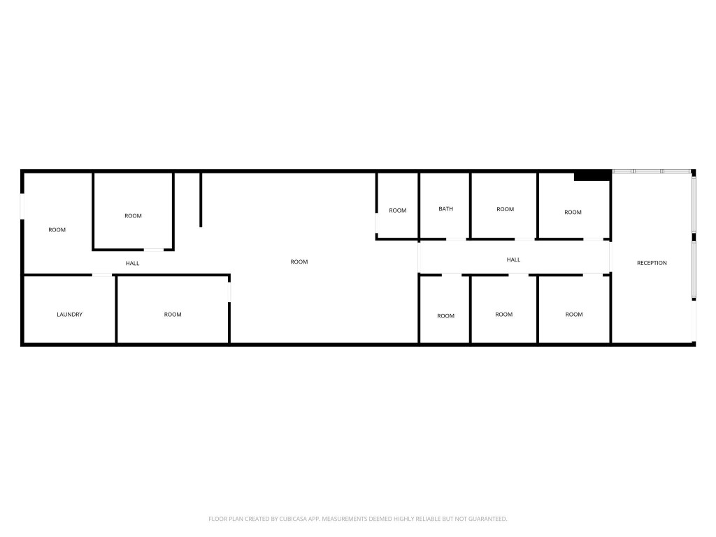
Available for lease is a second-generation animal clinic offering exceptional visibility with over 46,000 vehicles passing daily. Located in a high-traffic power plaza anchored by national tenants, this space is ideal for a veterinary or pet-related business seeking immediate exposure and convenience. Or it can be for any retail business. The property features existing build-out, ample parking, and prime signage opportunities in one of the area’s most active retail corridors — a rare opportunity for a turnkey clinic location.
Save
Ask
Tour
Hide
Share
Listing Snapshot
Price
$10,235
Days On Site
73 Days
Bedrooms
N/A
Inside Area (SqFt)
6,014 sqft
Total Baths
N/A
Full Baths
N/A
Partial Baths
N/A
Lot Size
1.15 Acres
Year Built
N/A
MLS® Number
F10536256
Status
Active
Property Tax
N/A
HOA/Condo/Coop Fees
N/A
Sq Ft Source
N/A
Friends & Family
React
Comment
Invite
Recent Activity
| 2 months ago | Listing first seen on site | |
| 2 months ago | Listing updated with changes from the MLS® |
General Features
Acres
1.15
Property Sub Type
Retail
SqFt Total
6014
Zoning
B-3
Save
Ask
Tour
Hide
Share
Community Features
MLS Area
3650
Listing courtesy of Native Realty Co.
All listings featuring the BMLS logo are provided by BeachesMLS, Inc. This information is not verified for authenticity or accuracy and is not guaranteed. Copyright © 2026 BeachesMLS, Inc. (a Flex MLS feed)
Last checked: 2026-01-24 09:10 AM UTC
All listings featuring the BMLS logo are provided by BeachesMLS, Inc. This information is not verified for authenticity or accuracy and is not guaranteed. Copyright © 2026 BeachesMLS, Inc. (a Flex MLS feed)
Last checked: 2026-01-24 09:10 AM UTC
Neighborhood & Commute
Source: Walkscore
Disclosure: Community information and market data powered by Constellation Data Labs. Information is deemed reliable but not guaranteed.
Save
Ask
Tour
Hide
Share

Did you know? You can invite friends and family to your search. They can join your search, rate and discuss listings with you.